https://www.tradgardsteknik.se/logotyper/bill_logo_1.png
Patric Torle
info@tradgardsteknik.se
0431-222 90
0431-222 70
Trädgårdsteknik AB tillverkar och bygger växthus, specialväxthus, orangerier, belysning Garden för hela Skandinavien.
Helsingborgsvägen 578
ÄNGELHOLM
262 96
SWEDEN

Frekvensomformare Grundfos CUE 3x380-500 V IP21 132kW 260A  




Frekvensomformare Grundfos CUE 3x380-500 V IP21 132kW 260A
  • CUE är en komplett serie externa frekvensomformare avsedda för varvtalsreglering av många olika Grundfospumpar.
  • CUE har inbyggd PI-styrenhet och erbjuder samma funktioner och användargränssnitt som Grundfos E-pumpar. CUE-lösningar kan alltså betraktas som en förlängning av E-pumpserien.
Med en CUE-lösning får du följande fördelar:
  • Samma funktioner och användargränssnitt som med Grundfos E-pumpar
  • Applikations- och pumpfamiljsrelaterade funktioner
  • Bättre komfort än med pumpar med fast varvtal
  • Mycket enkel installation och driftsättning jämfört med frekvensomformare av standardtyp
  • Varvtalsreglering av pumpar upp till 250 kW
  • Varvtalsreglering av pumpar installerade i områden med explosionsrisk.
CUE har följande in- och utgångar:
  • RS-485 GENIbus
  • En analog ingång 0-10 V för externt börvärde
  • En analog ingång 0/4-20 mA för givare
  • Fyra digitala ingångar för olika funktioner, till exempel externt start/stopp
  • Två signalreläer (C/NO/NC).
Tillbehör:
  • Utbyggnadskort I/O Ger följande extra in- och utgångar:
  • En analog ingång 0/4-20 mA för ytterligare givare
  • En analog utgång 0-20 mA
  • Två ingångar för temperaturgivare Pt100/Pt1000, till exempel för lagerövervakning.
Motorfilter:
  • Det finns ett antal motorfilter, för minskning av dU/dt och spänningstoppar i motorlindningarna, samt för minskning av oljud från motorn:
  • DU/dt-filter, 11-250 kW
  • Sinusfilter, 0,55-250 kW.
*-Bilden på produkten kan avvika från aktuell produkt.

    Tekniskt
    Läs på namnskylten CE, CULUS, C-TICK

    Installation
    Område för omgivande temperatur 0 till 40 °C
    Relativ fuktighet 5-95 %
    Monterad på VÄGG/GOLV

    Elektriskdata
    Effektförbrukning - P2 132 kW
    Nätfrekvens 50 Hz
    Märkspänning

    3x380-440 V

    Max strömförbrukning 260A
    Verkningsgrad vid full belastning 98%
    Kapslingsklass (EC 34-5) IP21
    Motorskydd JA
    Termiskt skydd Utvändig
    Kabellängd 150/300 m

    Övriga
    Nettovikt 120 kg
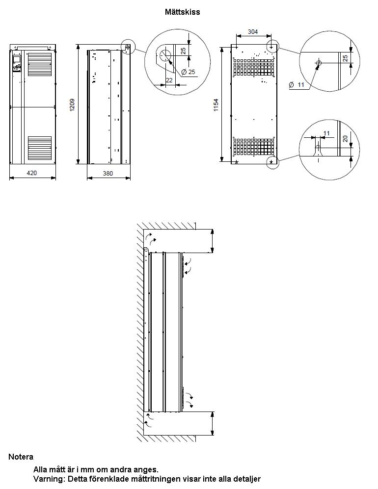
    » Ritning med mått beskrivning
    • Frekvensomformare Grundfos CUE 3x380-500 V IP21 132kW 260A
      Art. nr.
      GRU97942970
      Frekvensomformare Grundfos CUE 3x380-500 V IP21 132kW 260A
    För mer information kontakta oss på
    0431-222 90


    TRÄDGÅRDSTEKNIK AB
    Helsingborgsv., Varalöv
    262 96 ÄNGELHOLM
    Telefon:
    0431-222 90
    Org Nr:
    556409-6120
    Webbadress:
    www.tradgardsteknik.se
    E-post:
    info@tradgardsteknik.se