https://www.tradgardsteknik.se/logotyper/bill_logo_1.png
Patric Torle
info@tradgardsteknik.se
0431-222 90
0431-222 70
Trädgårdsteknik AB tillverkar och bygger växthus, specialväxthus, orangerier, belysning Garden för hela Skandinavien.
Helsingborgsvägen 578
ÄNGELHOLM
262 96
SWEDEN

Dränkbar tryckstegringspump Grundfos SBA 3-45 MW, 0,8kW 2,75 l/s 25,03m 1x230V 50Hz  




Dränkbar tryckstegringspump Grundfos SBA 3-45 MW, 0,8kW 2,75 l/s  25,03m 1x230V 50Hz

      • SBA är ett komplett allt-i-ett dränkbar tryckstegringspump för pumpning av rent vatten, är det särskilt lämplig för regnvatten ansökan och små privata brunnar. SBA kommer med en styrenhet integrera, eliminerar behovet av en extern pump-handkontroll.
      • Med SBA är det bokstavligen en fråga om "plug och pump".
      • En gång installerat och anslutet till rörsystemet; allt du behöver göra är att byta pumpen. Resultatet är en pålitlig lösning och kraftigt minskat installationskostnader.
      • Pumpen finns i två huvudsakliga versioner:
      • Med integrerad sugfilter (1 mm maska)
      • Eller med sida inlopp/flexibel sugslang med flytande sugfilter (1 mm maska).
      • Båda varianterna finns med eller utan flottör, flottörbrytaren erbjuder stopp vid låg vattennivå att säkerställa att ytan fragment inte in silen
               *-Bilden på produkten kan avvika från aktuell produkt.



        Vätska
        Pump Vätska Vatten
        Vätsketemperatur område 0 till 40 °C
        Vätsketemp 20 °C
        Densitet 998,2 kg/m³
        pH-värdesområde 4-9

        Teknisk data
        Resulterande flöde 2,75 l/s
        Resulterande lyfthöjd för pumpen 25,03 m
        Nom. pumphjul 102 mm
        Typ av hjul STÄNGD
        Pumphjul 3
        Max. partikelstorlek 1 mm
        Approvals and markings 1
        Kurvtolerans ISO9906:2012 3B
        starttryck Automatisk

        Material
        Pumphus PP30GF
        Pumphjul PPO20GF


        Installation
        Max. omgivningstemperatur 50 °C
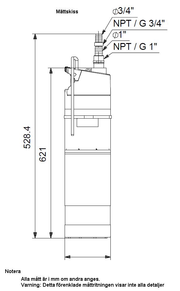
        Trycksida G 1"
        Max. installationsdjup 10 m
        Type of suction SIL

        Elektriskdata
        C kör 13 μF
        P2 0,8 kW
        Nätfrekvens 50 Hz
        Märkspänning

        1 x 220-240 V

        Nominell ström 3,8 A
        Startström 12 A
        Effektfaktor 0,94
        Varvtal 2800 Varvtal
        Kondensatorstorlek - kör 13 μF/450 V
        Kapslingsklass (EC 34-5) IP68
        Isolationsklass (EC 85) F
        Motorskydd JA
        Kabellängd 15 m
        Kabeltyp H07RN-F 3G1
        Typ av skarvkoppling SCHUKO

        Styrningar
        Flödesbrytare N

        Övriga
         Nettovikt 10.6 kg
        Bruttovikt 12.2 kg
        Leveransvolym 0.032 m³


         Prestanda kurvor

        Notera

        * Detta är nominella driftpunkten.

        » Ritning med mått beskrivning

        • Dränkbar tryckstegringspump Grundfos SBA 3-45 MW, 0,8kW 2,75 l/s  25,03m 1x230V 50Hz
          Art. nr.
          GRU97896285
          Dränkbar tryckstegringspump Grundfos SBA 3-45 MW, 0,8kW 2,75 l/s 25,03m 1x230V 50Hz
        För mer information kontakta oss på
        0431-222 90


        TRÄDGÅRDSTEKNIK AB
        Helsingborgsv., Varalöv
        262 96 ÄNGELHOLM
        Telefon:
        0431-222 90
        Org Nr:
        556409-6120
        Webbadress:
        www.tradgardsteknik.se
        E-post:
        info@tradgardsteknik.se